成都「华侨城七十二院」售房部电话 | 楼盘测评 | 房价实时动态 | 12月最新消息
【华侨城七十二院】售楼部热线:028-85558833(已认证)
【华侨城七十二院】项目客户经理电话:13281850333(微信同号)
温馨提示:为了给您提供更高更好的接待服务质量,看房请提前致电售楼处预约!
【有免费看房车接送服务,如需预约,请致电售楼处】
4A级景区洛带古镇|现房独栋合院
汇聚中华传统建筑之美|五大派系各具风采|每户独栋合院
项目介绍:
坐落于洛带的华侨城·七十二院,东靠龙泉山城市森林公园,北靠国家4A级景区洛带古镇,西临洛水湿地公园,南眺千亩蔚然花海
项目以客家人历史上五次大迁徙为文化背景,提取中国建筑的经典元素,融合闽、海、川、晋、徽五大建筑派系的院落特色,通过街道、巷弄、庭院的布局,展现中国传统建筑之美。

展开全文
【项目基础信息】
项目位置:成都市龙泉驿区洛带三峨街999号
占地面积:约200亩
物业公司:华侨城物业(集团)有限公司成都分公司
水电气收费:水4.3元/电0.79元/气2.59元
建筑面积:200—500平
总价区间:300万—1000万(特价178万起)
赠送花园:80-300平
容积率:0.65
物业费:5元/㎡
现房,即买即装修!
水电气三通
项目区位图:

【周边配套】
交通:
城市主干道:成都五环路(成环路)、成洛大道、渝蓉高速、蜀都大道等
公交:219路、850路、K7快速公交等十余条公交线路
距离双流机场、天府国际机场约40km,40分钟即可起飞全球
生态:
龙泉山城市森林公园、洛水湿地公园、蔚然花海(4A级景区)
学校:
龙泉驿区洛带第二幼儿园、洛带小学、洛带中学、成都康礼·克雷格公学(建设中)
医院:
龙泉驿区第二人民医院、洛带公立卫生院、龙泉驿区第一人民医院、龙泉驿区妇幼保健院、四川省人民医院东院
休闲:
洛带古镇(4A级景区)、中国艺库商业街
产品介绍:

川派:在售合院,面积段200-500㎡,均价约15800元/平,总价段300-900万

晋派:在售合院,面积段400-600㎡,均价约17800元/平,总价段680-1000万

徽派:面积段210-350㎡,均价约15000元/平,总价段300-520万

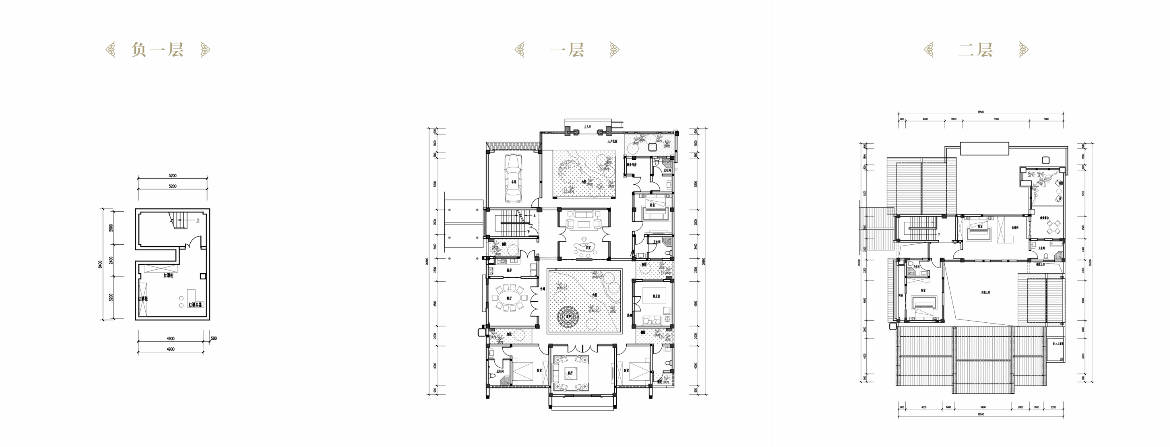
户型鉴赏:
川派:千虹院 12-5#(建筑面积448.24㎡,实得面积约633㎡)


川派:虹霓院 13-2#(建筑面积370.09㎡,实得面积约514㎡)


华侨城七十二院以其独特的建筑风格、深厚的文化底蕴和现代化的设计理念,成为了成都乃至全国知名的旅游和居住胜地。在这里,你可以感受到中国传统建筑的独特韵味,也可以享受到现代化的居住体验。如果你正在寻找一处既能安放身心又能享受自然与文化的居所,那么七十二院无疑是你的最佳选择。
【华侨城七十二院】售楼部热线:028-85558833(已认证)
【华侨城七十二院】项目客户经理电话:13281850333(微信同号)
温馨提示:为了给您提供更高更好的接待服务质量,看房请提前致电售楼处预约!
【有免费看房车接送服务,如需预约,请致电售楼处】








评论